一、 壁厚
压铸件的壁厚对铸件质量有很大的影响。以铝合金为例,薄壁比厚壁具有更高的强度和良好的致密性。因此,在保证铸件有足够的强度和刚性的条件下,应尽可能减少其壁厚,并保持壁厚均匀一致。
铸件壁太薄时,使金属熔接不好,影响铸件的强度,同时给成型带来困难;壁厚过大或严重不均匀则易产生缩瘪及裂纹。随着壁厚的增加,铸件内部气孔、缩松等缺陷也随之增多,同样降低铸件的强度。
压铸件的壁厚一般以2.5~4mm为宜,壁厚超过6mm的零件不宜采用压铸。推荐采用的最小壁厚和正常壁厚见表1。
表1 压铸件的最小壁厚和正常壁厚
壁厚处的面积a×b(cm2) 锌合金 铝合金 镁合金 铜合金 壁 厚 h (mm) 最小 正常 最小 正常 最小 正常 最小 正常 ≤25 0.5 1.5 0.8 2.0 0.8 2.0 0.8 1.5 >25~100 1.0 1.8 1.2 2.5 1.2 2.5 1.5 2.0 >100~500 1.5 2.2 1.8 3.0 1.8 3.0 2.0 2.5 >500 2.0 2.5 2.5 4.0 2.5 4.0 2.5 3.0
现使用的绝大多数为铝压铸件,其壁厚一般控制在2.0~2.5mm。
二、铸造圆角和脱模斜度
1)铸造圆角
压铸件各部分相交应有圆角(分型面处除外),使金属填充时流动平稳,气体容易排出,并可避免因锐角而产生裂纹。对于需要进行电镀和涂饰的压铸件,圆角可以均匀镀层,防止尖角处涂料堆积。
压铸件的圆角半径R一般不宜小于1mm,最小圆角半径为0.5 mm,见表2。铸造圆角半径的计算见表3。
表2 压铸件的最小圆角半径(mm)
压铸合金 圆角半径R 压铸合金 圆角半径R 锌合金 0.5 铝、镁合金 1.0 铝锡合金 0.5 铜合金 1.5
现采用的圆角一般取R1.5。
表3 铸造圆角半径的计算(mm)
相连接两壁的厚度 图例 圆角半径 相等壁厚
rmin=Kh
rmax=Kh
R=r+h 不等壁厚
r≥(h+h1)/3
R= r+(h+h1)/2
说明:①、对锌合金铸件,K=1/4;对铝、镁、合金
铸件, K=1/2。
②、计算后的最小圆角应符合表2的要求。
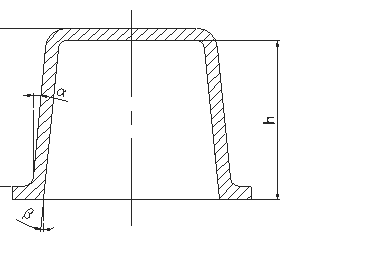
2) 脱模斜度
设计压铸件时,就应在结构上留有结构斜度,无结构斜度时,在需要之处,必须有脱模的工艺斜度。斜度的方向,必须与铸件的脱模方向一致。推荐的脱模斜度见表4。
表4 脱模斜度
合金 配合面的最小脱模斜度 非配合面的最小脱模斜度 外表面α 内表面β 外表面α 内表面β 锌合金 0°10′ 0°15′ 0°15′ 0°45′ 铝、镁合金 0°15′ 0°30′ 0°30′ 1° 铜合金 0°30′ 0°45′ 1° 1°30′
说明:①、由此斜度而引起的铸件尺寸偏差,不计入尺寸公差值内。
②、表中数值仅适用型腔深度或型芯高度≤50mm,表面粗糙度在Ra0.1,大端
与小端尺寸的单面差的最小值为0.03mm。当深度或高度>50mm,或表面
粗糙 度超过Ra0.1时,则脱模斜度可适当增加。
现采用的脱模斜度一般取1.5°。
三、加强筋
加强筋的设置可以增加零件的强度和刚性,同时改善了压铸的工艺性。
但须注意:
① 分布要均匀对称;
② 与铸件连接的根部要有圆角;
③ 避免多筋交叉;
④ 筋宽不应超过其相连的壁的厚度。当壁厚小于 1.5mm时,不宜采用加强筋;
⑤ 加强筋的脱模斜度应大于铸件内腔所允许的铸造斜度。
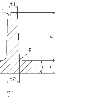
一般采用的加强筋的尺寸按图1选取:
t1=2 t /3~t;t2=3 t /4~t;
R≥t/2~t;
h≤5t; r≤0.5mm
(t—压铸件壁厚,最大不超过6~8mm)。

四、铸孔和孔到边缘的最小距离
1)铸孔
压铸件的孔径和孔深,对要求不高的孔可以直接压出,按表5。
表5 最小孔径和最大孔深
孔
合金 径
类别 最小孔径 d(mm) 最大孔深(mm) 孔的最
小斜度 一般的 技术上
可能的 盲孔 通孔 d>5 d<5 d>5 d<5 锌合金 1.5 0.8 6d 4d 12d 8d 0~0.3% 铝合金 2.5 2.0 4d 3d 8d 6d 0.5 % ~1% 镁合金 2.0 1.5 5d 4d 10d 8d 0~0.3% 铜合金 4.0 2.5 3d 2d 5d 3d 2 % ~4%
说明:①、表内深度系指固定型芯而言,,对于活动的单个型芯其深度还可以适当增加。
②、对于较大的孔径,精度要求不高时,孔的深度亦可超出上述范围。
对于压铸件自攻螺钉用的底孔,推荐采用的底孔直径见表6。
表6 自攻螺钉用底孔直径(mm)
螺纹规格d M2.5 M3 M3.5 M4 M5 M6 M8 d2 2.30~ 2.40 2.75~ 2.85 3.18~ 3.30 3.63~ 3.75 4.70~ 4.85 5.58~ 5.70 7.45~ 7.60 d3 2.20~ 2.30 2.60~ 2.70 3.08~ 3.20 3.48~ 3.60 4.38~ 4.50 5.38~ 5.50 7.15~ 7.30 d4 ≥4.2 ≥5.0 ≥5.8 ≥6.7 ≥8.3 ≥10 ≥13.3 旋入深度t t≥1.5d
现较为常用的自攻螺钉规格为M4与M5,其采用的底孔直径如下表:
d2 d3 t M4 3.84 0
-0.1 3.59 +0.1
0 10 M5 4.84 0
-0.1 4.54 +0.1
0 20
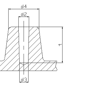
2) 铸孔到边缘的最小距离
为了保证铸件有良好的成型
条件,铸孔到铸件边缘应保
持一定的壁厚,见图2。
b≥(1/4~1/3)t
当t<4.5时,b≥1.5mm

五、压铸件上的长方形孔和槽
压铸件上的长方形孔和槽的设计推荐按表7 采用。
表7 长方形孔和槽(mm)
合金类别 铅锡合金 锌合金 铝合金 镁合金 铜合金 最小宽度b 0.8 0.8 1.2 1.0 1.5 最大深度H ≈10 ≈12 ≈10 ≈12 ≈10 厚度h ≈10 ≈12 ≈10 ≈12 ≈8
说明:宽度b在具有铸造斜度时,表内值为小端部位值。
六、压铸件内的嵌件
压铸件内采用嵌件的目的:
① 改善和提高铸件上局部的工艺性能,如强度、硬度、耐磨性等;
② 铸件的某些部分过于复杂,如孔深、内侧凹等无法脱出型芯而采用嵌件;
③ 可以将几个部件铸成一体。
设计带嵌件的压铸件的注意事项:
①嵌件与压铸件的连接必须牢固,要求在嵌件上开槽、凸起、滚花等;
②嵌件必须避免有尖角,以利安放并防止铸件应力集中;
③必须考虑嵌件在模具上定位的稳固性,满足模具内配合要求;
④外包嵌件的金属层不应小于1.5~2mm;
⑤铸件上的嵌件数量不宜太多;
⑥铸件和嵌件之间如有严重的电化腐蚀作用,则嵌件表面需要镀层保护;
⑦有嵌件的铸件应避免热处理,以免因两种金属的相变而引起体积变化,使嵌件松动。
七、压铸件的加工余量
压铸件由于尺寸精度或形位公差达不到产品图纸要求时,应首先考虑采用精整加工方法,如校正、拉光、挤压、整形等。必须采用机加工时应考虑选用较小的加工余量,并尽量以不受分型面及活动成型影响的表面为毛坯基准面。
推荐采用的机加工余量及其偏差值见表8。铰孔余量见表9。
表8 推荐机加工余量及其偏差(mm)
基本尺寸 ≤100 >100~250 > 250 ~400 > 400 ~630 > 630 ~1000 每面余量 0.5 +0.4
-0.1 0.75 +0.5
-0.2 1.0 +0.5
-0.3 1.5 +0.6
-0.4 2.0 +1
-0.4
表9 推荐铰孔加工余量(mm)
公称孔径D ≤6 >6~10 > 10 ~18 >18 ~30 >30 ~50 >50 ~60 铰孔余量 0.05 0.1 0.15 0.2 0.25 0.3
现采用的机加工余量一般取0.3~0.5mm。
Ripple公司在常规托管计划之外,内部转移了2亿枚XRP,引发了社区对其用途的猜测,分析师也指...
2 英国比特币财库SWC融资8.37万美元消息,据BitcoinTreasuries发推称:英国比特币国库公司 The Smarter Web Company 正在筹集 8.37 万美元资...
3 特朗普称战争已基本结束消息,据美国哥伦比亚广播公司驻白宫记者当地时间 3 月 9 日下午在社交媒体发帖称,在一次...
4 USDC Treasury销毁5960.43万USDC消息,据Whale Alert发推称:USDC Treasury 销毁 5960.43 万枚 USDC,价值约 5960.13 万美元。...
5 两家最大的DAT公司加倍投资加密货币。上周,主要数字资产管理公司大幅增持了加密货币。迈克尔塞勒 的 MicroStrategy 以平均每枚 70...
6 以太坊联合创始人出售价值 1.58 亿美元的以太坊联合创始人杰弗里威尔克通过 Kraken 出售了价值 1.5831 亿美元的 79,859 个 ETH,使其持仓减...
7 USDC Treasury 铸造 9000 万 USDC消息,据Whale Alert发推称:USDC Treasury 铸造了 9000 万枚 USDC,价值约 8999.98 万美元。...
8 USDC Treasury销毁8800万USDC消息,据Whale Alert发推称:USDC Treasury 销毁 8800 万枚 USDC,价值约 8799.58 万美元。...
9 如果美伊冲突持续数月,比特币可能会成宏观策略师马克康纳斯认为,如果美伊冲突持续,比特币可能会从中受益,因为政府支出和债...
10 TAP Invest推出扩展的主题型和多元资产投资TAP公司在其TAP Invest平台上推出了全新的主题投资策略,旨在为投资者提供多元化的长期全球趋...
成都来彰科技 蜀ICP备2025134723号-1
资讯来源互联网,如有版权问题请联系管理员删除。