01 电动车位的安装方式
1.电动停车位按设备安装完成度分为一次性配建和预留安装条件两种,具体如下:
1) 预留安装条件的要求:仅预留电力容量及设安装空间。
2) 一次性配建的要求:验收交付时,专用变压器及电缆桥架应敷设到位,根据地区及营销要求选择电缆、配电箱,充电设施的配置方式。
3) 新建住宅项目充电车位配建及预留比例,应按下表配置,特殊情况不能满足时,应说明原因,以最终条件图批复文件为准。

4) 交流充电桩,具有价格较低、尺寸小巧、易于安装、节省面积、易维护、适用于住宅地库夜间充电的优点。一次性配建充电设施原则上均按交流充电桩设计。
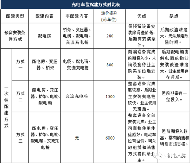
2.为避免成本浪费,同时保证验收及交付使用的要求,按设备安装完成度划分为下表的几种方式。各公司可根据成本测算及营销需求,相应选择各配建方式的占比,并应于条件图审批阶段说明。

02 充电停车位的放置要求
1.为便于设备铺设、充电设施管理使用,一次性配建的充电停车位宜集中布置为充电停车区,其规划要求如下:
1) 充电停车区应靠近充电配电室,充电配电室距离停车区不宜超过50米。
2) 服务直线半径超过200米时应分设多个充电停车区。
3) 充电停车区车位数量不宜超过100辆。
4) 充电停车区宜设置在车库出入口,便于消防救援及车辆出入。
2.为确保充电设施、变配电房使用安全、方便维护,其布置要求如下:
1) 不应设置在地势低洼易产生积水的位置。
2) 不应设置在卫生间、浴室相邻或其它经常积水场所的正下方。
3) 不应设置在有剧烈振动或高温的场所。
3.充电设施布置不应妨碍电动汽车行驶、停放,其与电动汽车、建(构)筑物的安全、操作、检修距离应符合下列要求:
1) 充电设施布置不应遮挡行车者视线,且不应设置在人行疏散走廊、通道上。
2) 充电设施朝向车辆的方向宜考虑防撞措施。
3) 原则上均应采用壁挂式安装或吊装式安装形式。
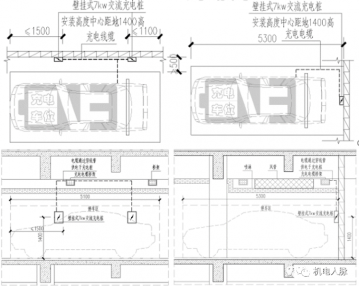
4) 安装形式及布置位置应考虑电动汽车与充电设施之间方便操作、便于车辆停靠,具体要求如下:充电设施宜布置在车位一侧的结构柱背面,安装完成后不应影响车门开启。安装形式根据结构柱面宽、选购的充电桩宽度选用,如下图示。




充电设施安装于车位侧边墙体时,侧边墙体与车位宽度应≥500mm,充电设施安装位置宜布置于车头或车尾,并不应影响车门开启;充电设施安装于车位尾部墙体时,车位宜贴墙体布置,充电设施居中安装,如下图示。

充电车位四周无土建安装构件时,充电设施可采用吊装式布置在车位尾部,如下图示。

标准柱跨充电设施安装方式应根据车位具体情况组合设置,如下图示。


4.充电设施的安装应符合下列要求:
1) 充电设施安装的墙面、支架符合承重要求,充电设施可靠固定。
2) 充电设施应垂直于水平面安装,偏离垂直位置任一方向的误差不宜大于5°。
3) 设备安装高度应便于操作,设备人机界面操作区域水平中心线距地面应为1.4m。
4) 地库内落地安装的充电设施应设安装基座,基座应大于充电设施外轮廓尺寸,高度应高于楼地面1000mm。
03 充电设备的通用要求
1 通用设计要求
1) 常用充电设备有3种:交流充电桩,功率7kW,供电电源采用220V交流电压;直流充电桩,功率30kW,供电电源采用380V交流电压;交直流一体充电桩,功率30+7kW,供电电源采用380V交流电压。(地区有特殊要求时以地方要求为准)
2) 充电设备应具备漏电保护、过欠流、过欠压、过温保护等功能。
3) 充电设备应具备紧急停机功能,充电枪插拔具备保护功能。设置于室外的充电设备应采取防雷措施。充电设备宜具有自动收线功能,防止人为使用不当造成的充电线缆损坏。
4) 选用的充电设备应符合国家标准、能源行业标准以及国家电网公司企业标准的相关要求,满足不同车型的充电需求。充电设备应兼容新/旧国标电动车的充电功能。
5) 特殊电动车需设置专用充电设备,由业主自行向物业及有关部门申请实施。
2 供配电及低压系统
1) 新建的住宅停车库(场),在设计变电所用电容量时,应充分考虑电动汽车充电设备的负荷容量,预留低压配电回路或预留专用变压器及配电系统的安装位置。
2) 电动汽车充电设备的负荷计算,在方案设计阶段应根据电动汽车停车位的数量按单位指标法进行计算,计算系数可参考下表选择。

3) 电动汽车充电设备的负荷计算,宜根据充电设备具体参数采用需要系数法进行,需要系数取值应满足国家及地方标准相关要求。
4) 电动汽车充电设备的配电电源应设置专用回路供电。充电设备的供电回路应按当地供电局要求,接入住宅公用变压器配电系统或非居配套专用变压器配电系统。
5) 电动汽车充电设备宜采用放射式配电,配电系统宜做到三相负荷平衡。
6) 宜采取抑制措施,将充电设备配电系统的谐波限制在规定范围内。
7) 充电设备配电线路的电线(缆)和线管在满足国家及地方标准的前提下,应按最经济原则选用。不应随意提高电线(缆)的规格,不应随意增加线管的材质标准和规格。
8) 电动汽车停车位区域的照度值应满足国家及地方标准相关要求。
3 计量计费、监控及通信系统
1) 充电设备应配置计量电能表,电能表数量应满足一桩一表。充电设备用配电箱应根据建筑划分的电动车停车区域,选择合理位置设置。
2) 充电设备具备IC卡读卡装置或扫码功能,实现充电控制及充电计费等功能。充电设备的计费标准,应结合当地供电局要求执行。充电设备应具有多种结算方式。
3) 充电设备应根据需要配置以太网通讯接口或无线通讯模块,便于后期充电桩组网管理,以及与相关管理部门系统联网。
4) 电动汽车充电设备监控及通信系统应根据工程实际按需设置。监控系统宜对供电状况、电能质量、供电设备运行状态等进行监视和控制。通信系统应能够满足与上级监控管理系统进行通信,接受上级监控管理系统的指令,上传数据到上级监控管理系统。
5) 充电设备监控及通信系统的控制室纳入物业管理综合信息平台,不单独设控制室。
6) 根据项目产品组合(高层、小高层、多层),进行供水方案技术经济比选,成本递减顺序为:带水箱变频加压控制系统、无负压管网直联式供水系统、市政压力直供,视项目情况可选用多方案组合
消息,Sui Developers 发推表示,Sui 新虚拟机已上线进行测试并同步开放漏洞赏金计划。新虚拟机...
2 DeFi游说团体撤销针对美SEC的空投诉讼,称3月17日消息,总部位于德克萨斯的服装公司Beba与加密游说组织DeFi Education Fund已自愿撤回2024年...
3 Polymarket上新“朝鲜会在3月31日前进行导弹消息,Odaily Seer 先知频道监测显示, Polymarket 上新朝鲜会在 3 月 31 日前进行导弹试射吗?,概...
4 Utexo 获得 750 万美元融资,用于扩展比特总部位于阿联酋的区块链基础设施初创公司 Utexo 完成了由 Tether 领投的 750 万美元种子轮融资,...
5 Matrixdock Gold (XAUM) Listed on KuCoin消息,KuCoin宣布将上线Matrixdock Gold 现货交易,该代币代表实物黄金所有权,每枚对应一金衡盎...
6 DefiLlama 推出新下载中心,可快速导出 5消息,数据聚合平台 DefiLlama 推出新下载中心,可快速导出 50 多个数据集。用户可下载完整数...
7 Global exclusive first launch:MuleRun (骡子快跑WEEX 已正式上线 MuleRun/USDT 交易对。这款基于 BSC 的迷因代币,以像素骡子吉祥物和自我进化的...
8 Chainlink社区联络员声称XRP账本是一条“幽Chainlink 的 Zach Rynes 称 XRP Ledger 为幽灵链,再次引发了关于 XRP 的争论。他认为 XRP 的桥梁货币概...
9 美国 XRP 现货 ETF 单日总净流出 597.86 万美消息,据 SoSoValue 数据,昨日XRP 现货 ETF 单日总净流出 597.86 万美元。 昨日仅 21Shares XRP ETF 净流...
10 英伟达官宣多种新产品,包括开源 AI 智能消息,英伟达首席执行官黄仁勋于英伟达 GTC 2026 大会上宣布将推出面向企业的开源 AI 智能体框...
成都来彰科技 蜀ICP备2025134723号-1
资讯来源互联网,如有版权问题请联系管理员删除。